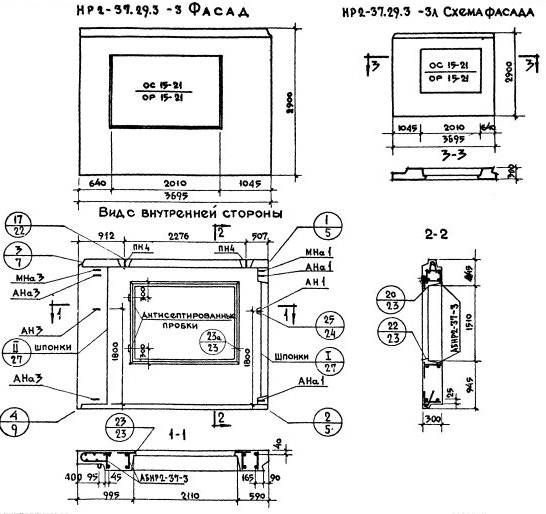
НР2-37.29-3-3л

Чертеж изделия:
Чертеж НР2-37.29-3-3л
Характеристики изделия:
ПараметрЗначение
Длина3695 мм
Ширина300 мм
Высота2900 мм
Масса2990 кг
Нормативный документСерия 1.132-1

НР2-37.29.3-3л   Наружная стеновая панель рядовая по Серии 1.132-1.